Logo

terrain à batir

€ 150.000
Vendu

260
364

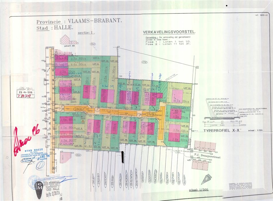
Terrain à bâtir dans une rue en cul-de-sac à proximité du centre de Hal.

Terrain à bâtir pour une maison 3 façades (LOT 20)

Prescriptions urbanistiques :

Superficie habitable possible : 260 m²

 Profondeur de construction au rez-de-chaussée : maximum 13 mètres

 Largeur constructible : 10 mètres

 Hauteur maximale de la corniche : 6,30 m

 Pente du toit entre 25° et 50°

Situé dans un quartier calme, avec un accès facile aux grands axes routiers et à l'autoroute.

Nombreuses commodités à proximité : école maternelle et primaire à 500 m, supermarché De Spar à 750 m, transports en commun à 600 m.

Informations générales


AdresseHerenveldstraat 23, 1500 Halle

Surface totale260 m²

Surface du terrain364 m²

Largeur du terrain13 m

Performance énergétique


Certificat d'électricité-

Financier


Prix€ 150.000

Revenu cadastral€ 3

Construction


Type de construction3 façades

Informations urbanistiques


Droit de préemptionNon

PermisPas applicable

CitationPas applicable

Permis de lotissementOui

AffectationZone d'habitat

Zone inondableNon

Zone inondableNon

Zone rivièreNon

Score PClasse A

Partagez cette propriété


Biens similaires