Zeer ruime woning met vele mogelijkheden.
Indeling:
- kelder: droge kelder
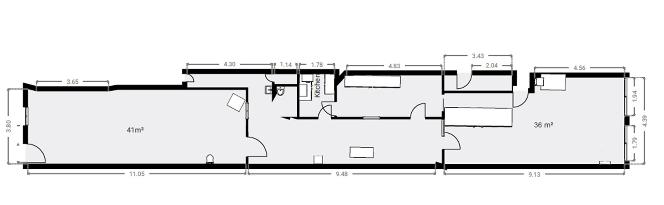
- gelijkvloers (120m²), mogelijks in te richten tot woning met 2 leefruimtes van 2x 40m² of ruimte voor vrij beroep met achterliggende woonst.
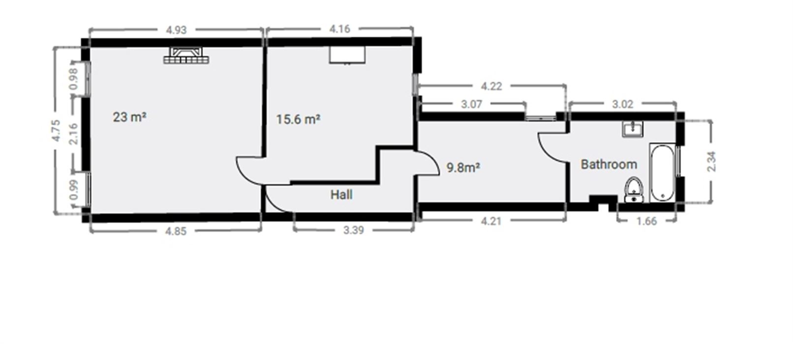
- 1ste: nachthal, badkamer, 2 ruime slaapkamers en dressing of bureau
- 2de verdiep: ingerichte zolder met vaste trap ingericht tot 2 slaapkamers.
EPC D geen renovatieplicht van toepassing!
Gelegen vlakbij het station, scholen, en handelszaken.
